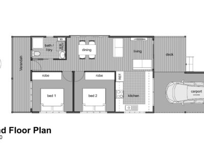
Our client was an Owner Builder and requested a simple, yet aesthetically pleasing Granny Flat roof design. For ease of construction, we proposed a sandwich panel roof which resulted in a raked ceiling and offered great internal spaces. We were then further engaged to undertake retrospective certification of other structures on the property.

BRAY PARK
GRANNY FLAT

CONTACT US

MEDICAL TENANCIES

The client requested a two classroom prep facility for pre-school children with central service such as kitchen and art room spaces. Outside, we provided spaces that includes play equipment and sand pits under a sail roofed areas. The roofed sails were modelled and placed in such a way to provide maximum protection from the sun during play times.

The building is a very simple and functional form that became an asset for the school to accommodate pre-school kids. The design support spaces flowing from the inside of the two large classrooms to the outside play area, while sharing the functional central spaces.

Although the outside space is fenced and separated from the remainder of the school, it is visually well connected with the rest of the school. Courtesy of Elevation Architecture Studio

CONTACT US

CLIENT REVIEWs

Anton not only complemented our ideas with clever design suggestions, his fundamental knowledge of construction principles and building materials were a true enabler for our building project. Well done, thank you!

Steffen & Colette
New Home Owners

This was our first time going through the building process and Anton went above and beyond in the work he did for us – often giving helpful tips/advice that other designers had not even thought to mention. The completed design was exactly what we were after and we have no hesitation recommending Anton and InForm Design Studio to anyone needing design work done.

Adam & Mel
New Home Owners

Anton was professional, courteous and patient. Often working weekends to keep my job moving. I was really impressed with his knowledge and advice throughout, and with the final sketches. He also did a great job co-ordinating the surveyor and town planner. Thanks Anton!

Craig
New Commercial Owner